Linka na výrobu briket LDB-350 Duo I 51 kW
- Kód výrobku: LDB-350Duo
Popis
Kompletní systém na zpracování biomasy na pevné brikety
Linka na výrobu briket LDB-350 DUO je kompletní a dobře optimalizovaný technologický systém určený pro kontinuální a efektivní výrobu topných briket z biomasy. Systém strojů LDB-350 DUO umožňuje výrobu vysoce energetického pevného paliva ze surovin, jako jsou piliny, listí, sláma, lepenka a další suché odpady
Konečným produktem linky pro lisování briket z biomasy jsou slisované bloky briket typu Nestro.
Kompaktní konstrukce, intuitivní obsluha a výkonné komponenty zajišťují, že linka LDB-350 DUO se skvěle osvědčí v průmyslových podnicích, zemědělských usedlostech a recyklačních společnostech.
Je možné otestovat tento stroj na vašem materiálu přímo u nás ve skladu!
Hlavní komponenty
- Dvě briketovací lisy BT-350 – mechanicko-pístové lisy s výkonem až 350 kg/h každý. Umožňují výrobu briket s nastavitelnou délkou a průměrem (vyměnitelné formovací pouzdra).
- Šnekový podavač PS-200 DUO – systém dvou nezávisle řízených šneků s frekvenčními měniči, umožňující přesné dávkování suroviny do briketovacích lisů.
- Odsávací systém SO-2 – uzavřený filtrační okruh pro odvod prachu a nečistot. Prach je vrácen zpět do výroby, což zvyšuje efektivitu a minimalizuje ztráty.
- Ovládací panel – centrální řídící systém umožňující správu všech prvků linky. Vybaven displeji parametrů, tepelným zabezpečením a možností ručního nastavení.
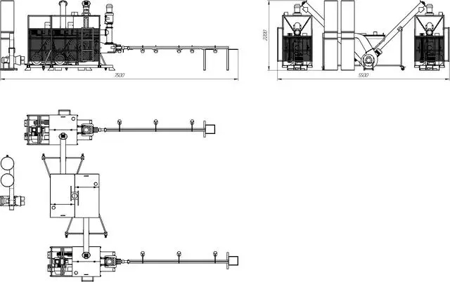
Technický výkres:
Výhody používání LDB-350 DUO:
- Vysoký výkon – celková produkční kapacita až 700 kg/h
- Modularita – možnost nastavení parametrů briketování (průměr, délka, stupeň slisování)
- Bezpečnost a ergonomie – prach se nedostává do okolí a obsluha nevyžaduje dlouhé zaškolení
- Ekologie a úspora – využití biomasy a bez nutnosti použití pojiv
- Různorodé použití – jak pro topení, tak pro krmné nebo recyklační účely
Použití
LDB-350 DUO je řešení určené pro firmy, které potřebují efektivní systém na zpracování suchých odpadů na obnovitelné palivo. Brikety vzniklé v procesu jsou ideální pro spalování v kamnech, krbech, kotlech i v průmyslových instalacích.
Linka pro výrobu briket LDB-350 DUO se osvědčí ve dřevozpracujících závodech, pilách, na farmách i v recyklačních firmách. LDB-350 DUO je řešení, které v sobě spojuje výkon, rentabilitu a ekologii.
Technické údaje
- Celkový výkon motorů: 50,5 kW
- Výkon: 500–700 kg/h
- Průměr brikety: 50 mm
- Typ brikety: kulatý válec bez otvorů
- Délka brikety: libovolná
- Rozměry (D׊×V): 5700 × 5000 × 2300 mm
- Hmotnost: 3200 kg
Potřebujete více informací o tomto zařízení?
Kontaktujte nás – poradíme vám nejlepší řešení!
Kontaktujte nás
