Šnekový podavač PS-200 DUO RPO
- Kód výrobku: PS-200-DUO-PRO
Popis
Šnekový podavač PS-200 DUO PRO je dvoumotorové řešení pro kontinuální transport veškerých sypkých materiálů. Stroj pracuje s využitím dvou paralelně běžících šneků, které zajišťují stabilní podávání suroviny s různou granulací – od pilin a štěpky až po krmné směsi a obilí. Model PS-200 DUO PRO lze využít jako podavač na piliny v linkách na výrobu pelet nebo jako podavač na obilí v zemědělství a zpracovatelských podnicích. Díky kompaktní, ale zesílené konstrukci a možnosti plynulé regulace otáček šnekový podavač PS-200 DUO PRO zaručuje vysokou kulturu práce i snadnou integraci s ostatními stroji. Rozdíl mezi PS-200 DUO a PS-200 DUO PRO spočívá ve větším zásobníku – ve verzi PRO má kapacitu 2 m³, zatímco ve standardní verzi činí 0,4 m³.
Je možnost otestovat tento stroj na vašem materiálu u nás ve skladu!

Hlavní výhody šnekového podavače PS-200 DUO PRO
- Dvojité podávání – dva šneky umožňují zásobování dvou odběrných míst nebo zvýšení výkonu jednoho stanoviště.
- Stabilní výkon – rovnoměrný proud materiálu omezuje zácpy a prostoje linky.
- Plynulá regulace – možnost nastavení rychlosti podávání dle požadavků procesu.
- Robustní konstrukce – zesílený rám a pracovní části odolné proti opotřebení.
- Bezpečný provoz – kryty a bezpečnostní systémy chrání obsluhu i pohon.
- Snadná integrace – bezproblémové začlenění do existujících technologických linek.
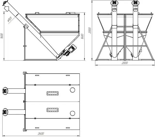
Technický výkres:

Využití
Model PS-200 DUO PRO najde využití v linkách na výrobu pelet (jako šnekový podavač na piliny), ale také v krmivářství a zemědělství (jako podavač na obilí). Skvěle zvládá podávání sypkých směsí do peletovacích lisů, mlýnů, míchacích zařízení nebo zásobníků, což zajišťuje snadný a opakovatelný výrobní proces.
Všechny naše šnekové podavače jsou vybaveny dvěma neodymovými magnety, které čistí surovinu od kovových nečistot.
Parametry:
- Výkon: 3,0 kW, 380-400 V
- Kapacita zásobníku: 2 m³
- Otáčky šneku bez frekvenčního měniče: 56–84 ot./min
- Výkon při pilinách: do 1400 kg/h
- Výkon při krmivu: do 2000 kg/h
- Typ dopravníku: šnekový
- Typ trasy dopravníku: vertikální, uzavřená
Rozměry:
- Hmotnost: 300 kg
- Délka: 2560 mm
- Šířka: 1975 mm
- Výška: 2000 mm
Potřebujete více informací o tomto zařízení?
Kontaktujte nás – poradíme vám nejlepší řešení!
Kontaktujte nás