Šnekový podavač PS-200 PRO
- Kód výrobku: PS-200PRO
Popis
Šnekový podavač PS-200 PRO je zvětšeným a funkčnějším modelem zařízení PS-200 ze série strojů určených pro přepravu sypkých materiálů, jako jsou piliny, štěpky nebo obilí. Navzdory větším rozměrům ve srovnání s modely série PS zajišťuje spolehlivý a efektivní provoz, což z něj činí vynikající řešení pro větší výrobní provozy a zemědělské podniky. Ve srovnání se standardním modelem PS-200 byla verze PRO vybavena zvětšeným zásobníkem a zesílenou konstrukcí, díky čemuž poskytuje ještě vyšší výkon a spolehlivost provozu. Rozdíl mezi PS-200 a PS-200 PRO spočívá ve větším zásobníku – ve verzi PRO má kapacitu 1 m³, zatímco ve standardní verzi činí 0,2 m³.
Je možný test tohoto stroje na Vaší surovině u nás ve skladu!

Hlavní výhody šnekového podavače PS-200 PRO
- Univerzální použití – může pracovat jako podavač na piliny, podavač na obilí i jiné sypké materiály,
- Zesílená konstrukce – odolná vůči intenzivnímu provozu a dlouhodobému zatížení,
- Vyšší výkon – optimalizovaný šnekový mechanismus zajišťuje ještě plynulejší zásobování materiálem,
- Ergonomie a snadná obsluha – jednoduchá údržba a intuitivní používání,
- Zvětšený rozměr ve verzi PRO – umožňuje efektivní využití prostoru při zachování vysoké funkčnosti.
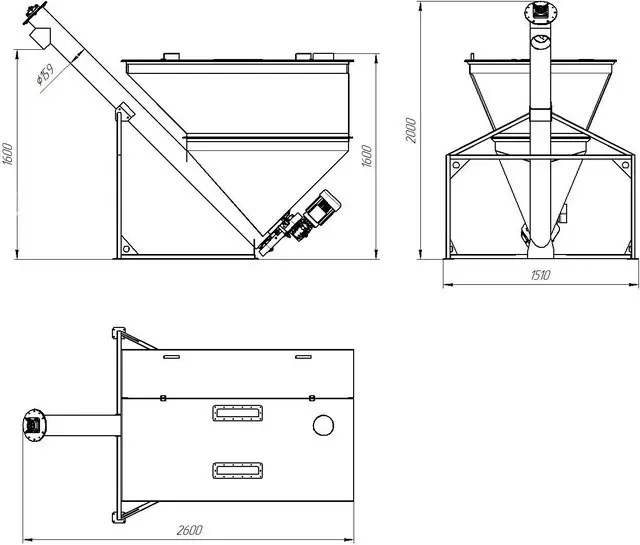
Technický výkres:

Použití
Podavač na obilí PS-200 PRO najde využití v malých pilách a dřevařských provozech (při dopravě pilin a štěpek), zemědělských podnicích i větších výrobních linkách, které vyžadují stálé podávání sypkých materiálů. Kromě toho může být model PS-200 PRO použit také ve větších výrobních závodech, jež potřebují zařízení, které lze snadno spojit se zbytkem výrobní linky. Díky své konstrukci je šnekový podavač PS-200 PRO spolehlivé a snadno ovladatelné zařízení pro přepravu surovin při každodenní práci.
Všechny naše šnekové podavače jsou vybaveny dvěma neodymovými magnety, které čistí surovinu od kovových nečistot.
Technické parametry:
- Výkon: 1,5 kW, 380–400 V
- Objem zásobníku: 1 m³
- Otáčky šneku bez frekvenčního měniče: 56–84 ot./min
- Typ dopravníku: šnekový
- Typ trasy dopravníku: vertikální, uzavřená
- Hmotnost: 240 kg
Potřebujete více informací o tomto zařízení?
Kontaktujte nás – poradíme vám nejlepší řešení!
Kontaktujte nás