Frantoio a mascelle BIZON-300 con nastro trasportatore
- Codice Prodotto: BIZON-300-E-PT
Descrizione
La compatta ed efficiente frantumatrice a mascelle BIZON-300 con trasportatore a nastro integrato trova un’ampia applicazione in numerosi settori industriali: edilizia, riciclaggio di rifiuti edili, estrazione mineraria, industria chimica e produzione di materiali da costruzione.
L’apparecchio è destinato alla frantumazione primaria e secondaria di diversi materiali, come pietra, calcestruzzo, mattoni o materie plastiche, con una resistenza alla compressione fino a 320 MPa. Grazie alla sua costruzione semplice ma robusta, la frantumatrice garantisce un funzionamento affidabile anche in condizioni difficili.
Vantaggi della frantumatrice a mascelle BIZON-300:
Struttura semplice – facile da usare e manutenere;
Alto rapporto di frantumazione – il prodotto ottenuto ha una dimensione di uscita omogenea;
Alta affidabilità – funzionamento stabile con bassi costi di esercizio;
Basse emissioni di rumore e polvere – sicura per l’ambiente e per l’operatore.
Come funziona la frantumatrice?
Il dispositivo è azionato da un motore – a seconda della versione, può essere benzina o elettrico. La mascella mobile si muove su e giù tramite un albero eccentrico. Durante l’abbassamento della mascella si riduce la fessura tra la mascella fissa e quella mobile, causando la frantumazione del materiale. Quando la mascella sale, la fessura si allarga e il materiale frantumato lascia la zona di lavoro grazie all’azione delle molle.
Vuoi testare le prestazioni della nostra frantumatrice? Ti invitiamo nel nostro magazzino, dove potrai verificarne l’efficacia personalmente!
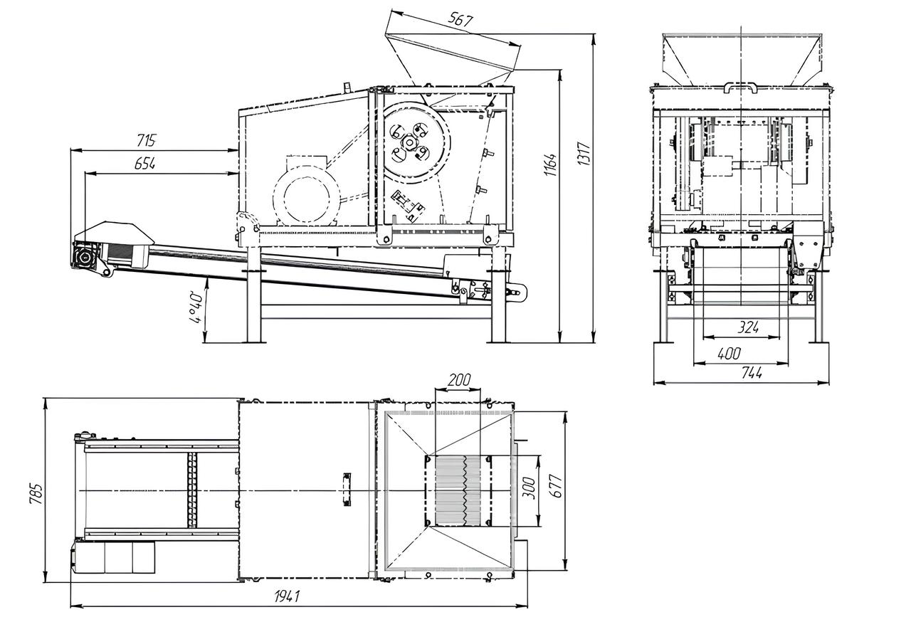
Dati tecnici:
Dimensioni apertura di alimentazione: 300 × 200 mm
Potenza motore benzina: 13 HP
Potenza motore elettrico: 5,5 / 7,5 kW
Azionamento trasportatore efficace: motoriduttore CMRV 040 (rapporto 1:80) con motore a due velocità da 0,14/0,22 kW (consumo 0,14 kW a 1500 giri/min e 0,22 kW a 3000 giri/min);
Peso del dispositivo: 380 kg
Disegno tecnico:

Hai bisogno di maggiori informazioni sulla frantumatrice BIZON-300?
Contattaci - ti consiglieremo la soluzione migliore per la tua produzione!
