Łuparka do drewna LD-50 z silnikiem elektrycznym
- Kod produktu: ld-50-elektr
Opis
LD-50 to mobilna, przemysłowa łuparka do drewna stworzona z myślą o przygotowaniu drewna opałowego na potrzeby domowe lub przemysłowe. Łuparka do drewna LD-50 umożliwia szybkie, sprawne i - przede wszystkim bezpieczne - rozłupywanie kłód o średnicy 500 mm i wysokości 420 mm.
Urządzenie wykorzystuje system przekładniowy (inercyjny) - za pomocą energii kinetycznej rozłupuje drewno wzdłuż włókien.
Prowadnica uderza w koniec kłody, a ta pęka po kontakcie z ostrzem klina rozłupującego.
Jedno uderzenie pozwala podzielić pieniek na 2,4 lub więcej części - zależy to od zamontowanej końcówki.
Łuparka do drewna LD-50 jest napędzana silnikiem elektrycznym 400V o mocy 4 kW.
Istnieje możliwość testu tej maszyny na Twoim surowcu u nas w magazynie!

Zalety LD-50
- Stabilna konstrukcja o wadze 350 kg, umożliwiająca intensywną pracę w warunkach przemysłowych
- Możliwość montażu przenośnika rolkowego – usprawnia ciągły proces łupania drewna
- Koła samochodowe 13R i zaczep do haka holowniczego – łatwy transport i mobilność maszyny
- Solidna obudowa i konstrukcja stalowa odporna na uszkodzenia mechaniczne
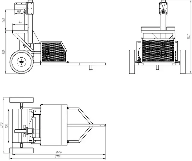
Rysunek techniczny:

Zastosowanie LD-50
Łuparka do drewna LD-50 z silnikiem elektrycznym świetnie sprawdza się zarówno w użytku domowym jak i przemysłowym. Mobilna konstrukcja i zamontowane w urządzeniu koła samochodowe ułatwiają pracę w gospodarstwie.
Łuparka LD-50 to niezawodny sprzęt do rozłupywania drewna opałowego.
Parametry techniczne:
- Moc – 4 kW
- Maksymalna wysokość klocka – 460 mm
- Maksymalna średnica klocka – 340 mm
- Długość – 2120 mm
- Szerokość – 1240 mm
- Wysokość – 1630 mm
- Waga – 375 kg
Potrzebujesz więcej informacji o tym urządzeniu?
Skontaktuj się z nami – doradzimy najlepsze rozwiązanie dla Ciebie!
Kontakt z nami