Kalapácsos malom MB-1200
- Cikkszám: MB-1200
Leírás
MB-1200 kalapácsos malom a mi legerősebb gépünk, amely különböző nyersanyagok aprítására szolgál, mint például faapríték, forgács, fűrészpor, gabona, magvak, faipari hulladékok vagy héjak.
A részecskeméret (6-20 mm, szitától függően) állítható, így a malom kiválóan alkalmazható sokféle felhasználási területen, mint pl. takarmány, pellet, brikett gyártásánál, illetve egyéb gazdasági folyamatokban. A berendezés tökéletesen alkalmas akár 60% nedvességtartalmú nyersanyagok feldolgozására is, ami lehetővé teszi a biztonságos üzemeltetést a hajtás károsodásának veszélye nélkül.
Lehetőség van a gép tesztelésére a Te nyersanyagodon a mi raktárunkban!
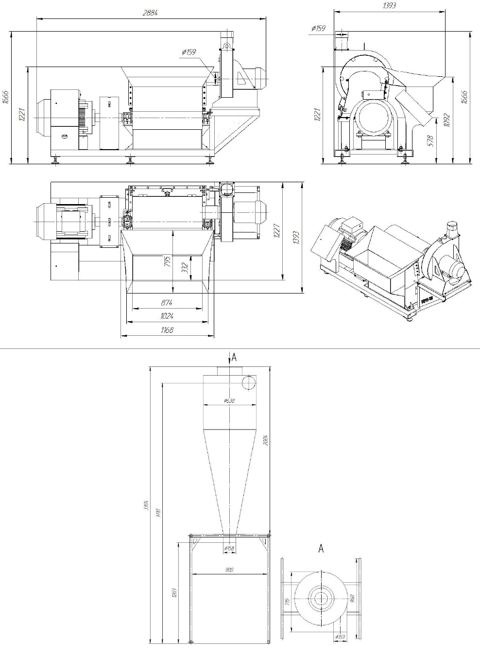
Műszaki rajz:

A MB-1200 kalapácsos malom előnyei:
- Teljesítmény:Kalapácsos malmunk maximális munkahatékonyságot biztosít.
- Sokoldalúság:A malom számos magtípussal – gabonától az olajos magokig – is megbirkózik. Faalapú hulladékhoz is alkalmas. Bármilyen nyersanyagnál tökéletesen az igényeidhez igazított terméket kapsz.
- Tartósság:A kiváló minőségű anyagoknak és szigorú teszteknek köszönhetően a malom tartós és megbízható még intenzív ipari körülmények között is.
- Egyszerű kezelés:Az intuitív kezelőfelületnek és a könnyű alkatrész-hozzáférésnek köszönhetően a gép üzemeltetése és karbantartása gyors és problémamentes.
- Biztonság:Fejlett biztonsági rendszerek minimalizálják a baleseti kockázatot, így biztosítva a biztonságos és stabil működést.
Teljesítmény:
- akár 1200 kg/óra
* A zúzó teljesítménye a feldolgozott nyersanyag típusától és fizikai tulajdonságaitól, illetve az elért frakciótól függ.
Műszaki jellemzők:
- Motorok: 75 kW és 11 kW
- Méretek (H×Sz×M): 2824 × 1393 × 1666 mm
- Tömeg: 1980 kg
- Betöltőnyílás mérete: 870 × 332 mm
- Betöltési magasság: 1100 mm
- Kalapácsok száma: 56 db
Ciklon jellemzői:
- Tömeg: 70 kg
- Méretek (H×Sz×M): 1058 × 1367 × 3302 mm
Elektromosenergia-fogyasztás:
- 86 kW
Több információra van szüksége erről a berendezésről?
Lépjen kapcsolatba velünk – segítünk megtalálni a legjobb megoldást!
Kapcsolat